KH-998, Znížená cena 1 izbový byt, Prešov, Sídlisko III., Volgogradská

  • Pôdorys byt Volgogradská B.jpg
  • parkovisko 2.jpg
  • kuchyňa a jedáleň.jpg
  • izba.jpg
  • kúpelňa.jpg
  • parkovisko.jpg
  • výhľad.jpg
  • okolie2.jpg

1-izbový byt na predaj v okrese Prešov

Na predaj: 1-izbový byt na Sídlisku III – Prešov
Štartovací byt, investícia, alebo pokojné bývanie v skvelej lokalite
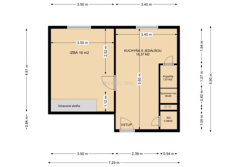
Ponúkame na predaj svetlý a prakticky riešený 1-izbový byt o výmere 35 m², nachádzajúci sa na Sídlisku III v Prešove, na ulici Volgogradská. Byt je orientovaný na východ, čo zabezpečuje príjemné ranné svetlo.
Dispozícia:

samostatná izba
kuchyňa s jedálenským kútom
kúpeľňa so sprchovacím kútom a podlahovým vykurovaním
samostatné WC
k bytu patrí murovaná pivnica (2 m²)

Stav bytu a bytového domu:

čiastočná rekonštrukcia
drevená podlaha
byt je bez tiarch, pripravený k okamžitému predaju
kúpeľňa je odvetrávaná
bytový dom má bezbariérový výťah
bytový dom je zateplený

Lokalita: Byt sa nachádza v pokojnej a zelenej časti Sídliska III s kompletnou občianskou vybavenosťou – obchody, školy, škôlky, zdravotné stredisko, MHD, kostol, reštaurácie, športoviská.

Výhodou je dostatok parkovacích miest priamo pred domom.

Cena: 123500

Kontakt: Pre bližšie informácie sa s dôverou môžete kedykoľvek obrátiť na rodinného realitného makléra: Ing. Jana Jevočinová +421 905 648 413, jevocinova@impulzreal.sk.

Tešíme sa na spoluprácu.

"VŠETKO POD JEDNOU STRECHOU", zabezpečenie právnych služieb advokátom, služby financovania, protokolárne odovzdanie nehnuteľnosti + elektrárne, plyn a 100% servis aj v budúcnosti so spoľahlivým tímom čestných a kvalifikovaných ľudí s dlhoročnými skúsenosťami. S nadhľadom profesionálnych skúseností, s maximálnym rešpektovaním Vašich potrieb, žijeme s vami Vaše realitné rozhodnutia akoby boli naše vlastné.
Spoločnosť Impulz Real - spoločnosť, ktorej DÔVERUJETE.

Podrobné informácie

vrátane provízie
5/vyššie poschodie
7
1
35 m²
35 m²
osobné
čiastočne prerobený
aktívne
sprchovací kút
spoločné
2 m²
verejné
panel
B
plastové
východná

Poloha nehnuteľnosti na mape

Volgogradská, Prešov, Slovensko

  • Štát Slovensko
  • Kraj Prešovský
  • Okres Prešov
  • Mesto Prešov
  • Ulica Volgogradská
  • Druh 1-izbový byt
  • Typ predaj
  • Vlastníctvo osobné
  • Kontakt +421905648413
  • Pridané 14. august 2025 11:35 hod

Pre viac informácií kontaktujte

Ing. Jana Jevočinová

Ing. Jana Jevočinová

rodinný realitný poradca

+421905648413

jevocinova@impulzreal.sk

Zobraziť 19 ponúk Certifikáty