Chata na predaj v lokalite Košická Belá v Košiciach-okolie
PREDANÉ - Pôvodná, ale udržiavaná chata na Ružíne s výhľadom na les, s pozemkom v osobnom vlastníctve, v tichom prostredí je ideálnym miestom na oddych, relax a načerpanie novej energie v lone prírody.
Impulz Real, s.r.o., vo výhradnom zastúpení Ing. Peter Plačintár, +421903806237 Vám ponúka na predaj útulnú chatu na Ružíne, časť nad Bradanom, Košická Belá, katastrálne územie Malý Folkmár.
Popis chaty:
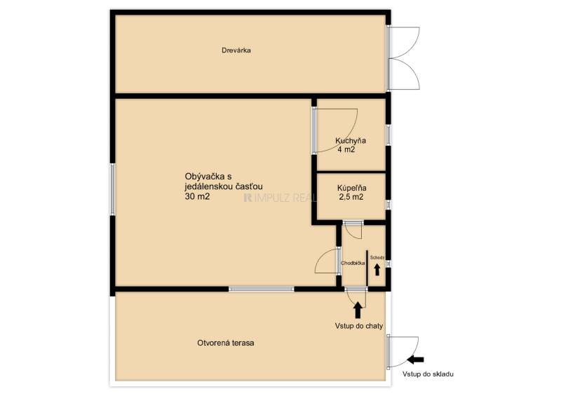
Ide o kompletne zariadenú drevenicu postavenú na betónovom základe. Zastavaná plocha chaty je 80 m2, obytná plocha tvorí 71,5m2, úžitková plocha je 125 m2. Dvojpodlažná chata má pridelené súpisné číslo a pozemok je v osobnom vlastníctve. Prístup k chate je z hlavnej cesty v smere na Veľký Folkmár po lesnej ceste približne 1 km.
Dispozícia:
● na 1. poschodí chaty sa nachádza zariadená obývacia izba s kozubom, kompletne zariadenou kuchyňou, kúpeľňa s WC (bez zavedenej vody), terasa s výhľadom na les a okolitú prírodu. Pod terasou sa nachádza pivnica.
● na 2. poschodí sa nachádzajú dve spálne.
● na prízemí sa nachádza sklad na uloženie náradia a materiálu.
● okná a dvere sú drevené s ochrannými okenicami.
● strecha sedlová plechovou krytinou.
IS a vykurovanie:
Elektrina, vykurovanie kozubom, zberné nádrže na vodu, suché WC. Chata je zabezpečená kamerovým systémom a alarmom. Na pozemku sa nachádzajú zberné nádoby na dažďovú vodu a vonkajšia sprcha.
Popis pozemku:
● výmera: 200 m².
● mierne svahovitý s orientáciou juh – sever.
● terén je upravený.
● vstup z nespevnenej lesnej komunikácie.
Interaktívny pôdorys nájdete na tejto stránke:
https://floorplanner.com/projects/178954606/spaceplanner
Lokalita:
Významnou prednosťou tejto nehnuteľnosti je jej poloha v tichu lesa s možnosťou víkendového relaxu, hubárčenia a rôznych športových aktivít. Ideálne miesto na víkendový oddych, rekreáciu alebo tichý únik z mestského ruchu.
"VŠETKO POD JEDNOU STRECHOU", zabezpečenie právnych služieb advokátom, služby financovania, protokolárne odovzdanie nehnuteľnosti + elektrárne, plyn a 100% servis aj v budúcnosti so spoľahlivým tímom čestných a kvalifikovaných ľudí s dlhoročnými skúsenosťami. S nadhľadom profesionálnych skúseností, s maximálnym rešpektovaním Vašich potrieb, žijeme s vami Vaše realitné rozhodnutia akoby boli naše vlastné.
Spoločnosť Impulz Real - spoločnosť, ktorej DÔVERUJETE.
Podrobné informácie
Poloha nehnuteľnosti na mape
Košická Belá, Košice-okolie, Slovensko




