Kancelárie na prenájom v lokalite Košice - mestská časť Staré Mesto v Košiciach - Staré Mesto
Mgr. Gabriela Ferenczová a Impulz Real, s.r.o. Vám ponúkajú na prenájom reprezentatívne kancelárske priestory priamo v srdci centra mesta na Mlynskej ulici.
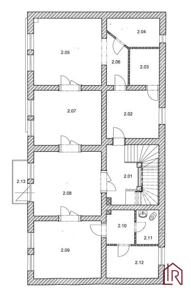
Ponúkané priestory majú celkovú rozlohou 138,05m2 s výhľadom na Dóm sv. Alžbety.
Cena mesačného nájmu pozostáva z:
9€/m2 x 138,05m2 = 1242,45€€
+ 330€ zálohová platba za energie, pri dlhšom nájme upravená podľa reálnej spotreby
+ DPH
Celoková cena prenájmu je 1572,45€ mesačne bez DPH (1934,11€ mesačne s DPH )
Depozitu je vo výške jedného mesačného nájmu.
Priestory sa skladajú zo štyroch veľkých presvetlených kancelárii, jednej menšej kancelárie, serverovne, skladu, kuchynky a toalety.
Priestory disponujú až troma samostatnými vstupmi, čo umožňuje flexibilné usporiadanie podľa potrieb nájomcu.
Doplňujúce informácie:
- 2x klimatizačná jednotka v kanceláriách
- Samostatná klimatizácia v serverovni
- Vlastný kotol zabezpečujúci kúrenie a ohrev teplej vody
- Optický internet v budove
- Priestory sa rozliehajú na celom poschodí, čo zaručuje dostatok súkromia
Pre bližšie informácie sa s dôverou môžete kedykoľvek obrátiť na rodinného realitného makléra: Mgr. Gabriela Ferenczová +421 908 520 254, ferenczova@impulzreal.sk (certifikovaný maklér NARKS - Národná asociácia realitných kancelárií Slovenska).
Tešíme sa na spoluprácu.
"VŠETKO POD JEDNOU STRECHOU", zabezpečenie právnych služieb advokátom, protokolárne odovzdanie nehnuteľnosti a 100% servis aj v budúcnosti so spoľahlivým tímom čestných a kvalifikovaných ľudí s dlhoročnými skúsenosťami. S nadhľadom profesionálnych skúseností, s maximálnym rešpektovaním Vašich potrieb, žijeme s vami Vaše realitné rozhodnutia akoby boli naše vlastné.
Impulz Real - spoločnosť, ktorej DÔVERUJETE.
Podrobné informácie
Poloha nehnuteľnosti na mape
Mlynská, Košice - mestská časť Staré Mesto, Košice - Staré Mesto, Slovensko


